Programme Rénovation complète d'un appartement, réorganisation des espaces, agencements sur mesure
Localisation Paris 18
Surface 95 m²
Statut Livré en juillet 2023​​​​​​​

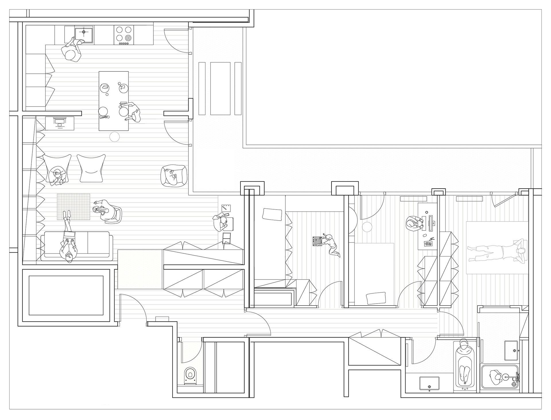
Plan projet

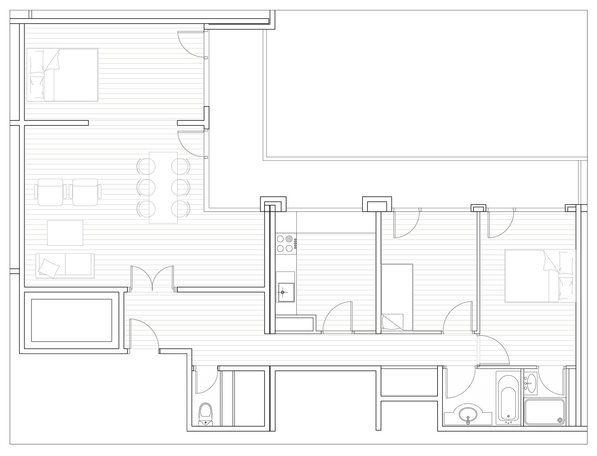
Plan existant

Photo séjour avant travaux

Photo cuisine avant travaux

Back to Top