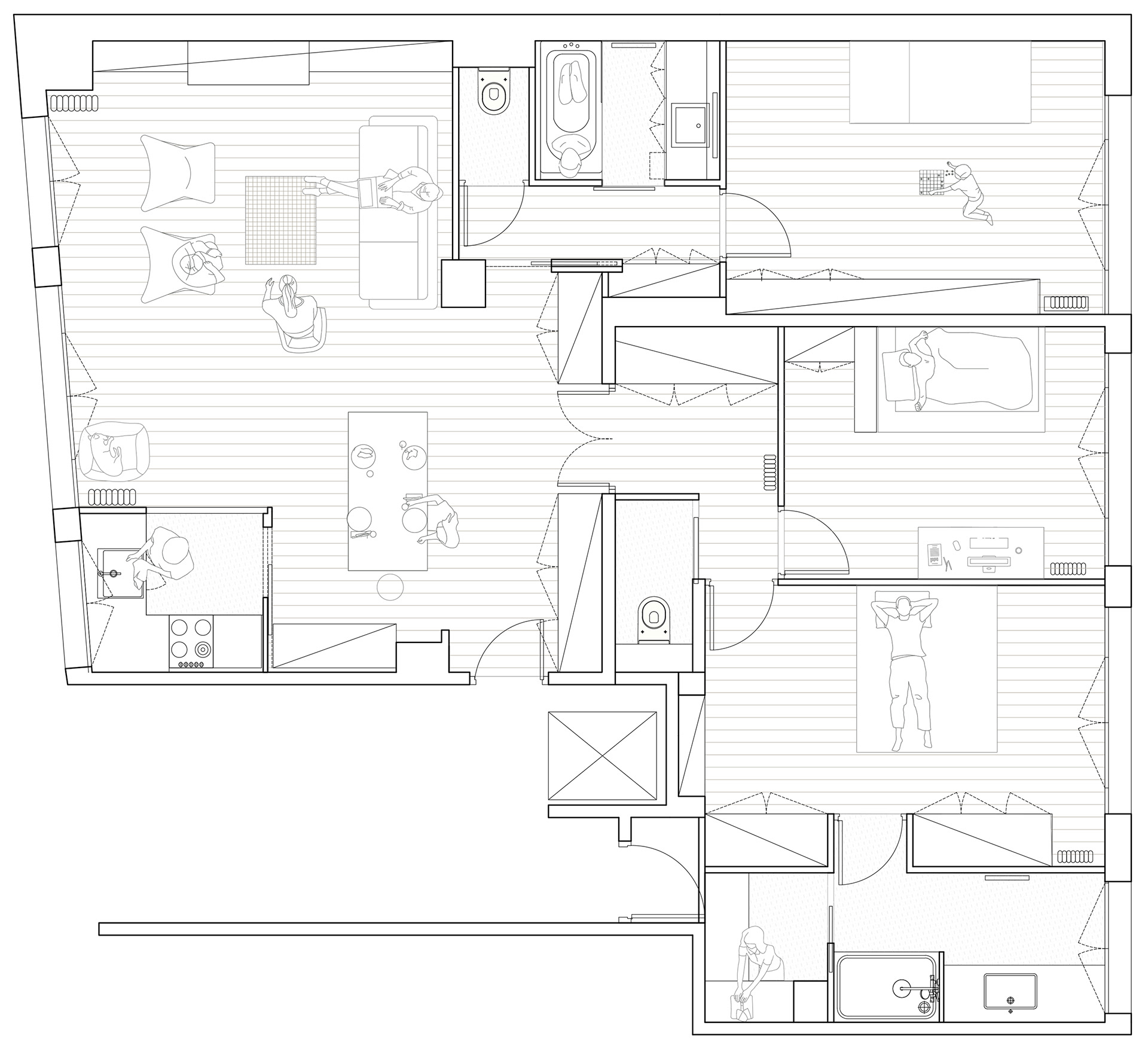
Programme Rénovation complète appartement / reunion de 2 appartements pour n'en faire qu'un grand / agencements sur mesure
Localisation Paris 18
Surface 110 m²
Statut Livré en janvier 2021
Plan projet

Plan existant

salon avant rénovation

cuisine avant rénovation

Back to Top